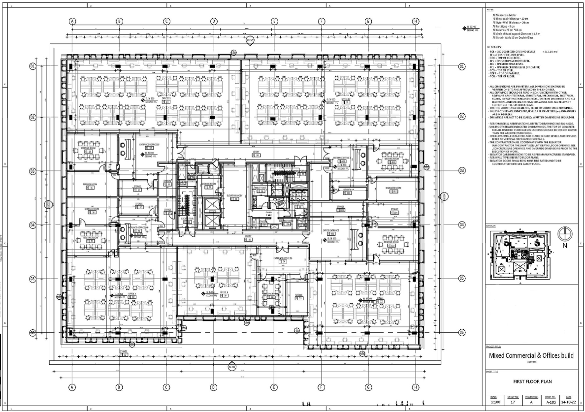
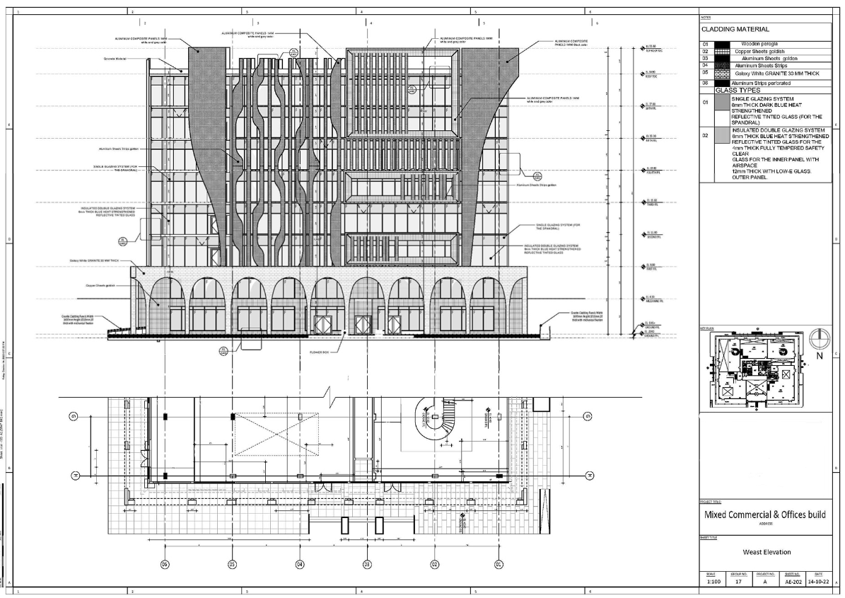
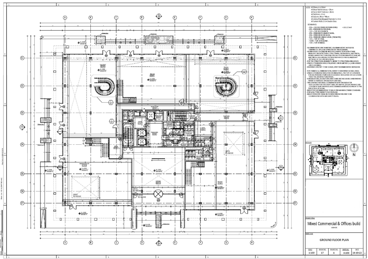
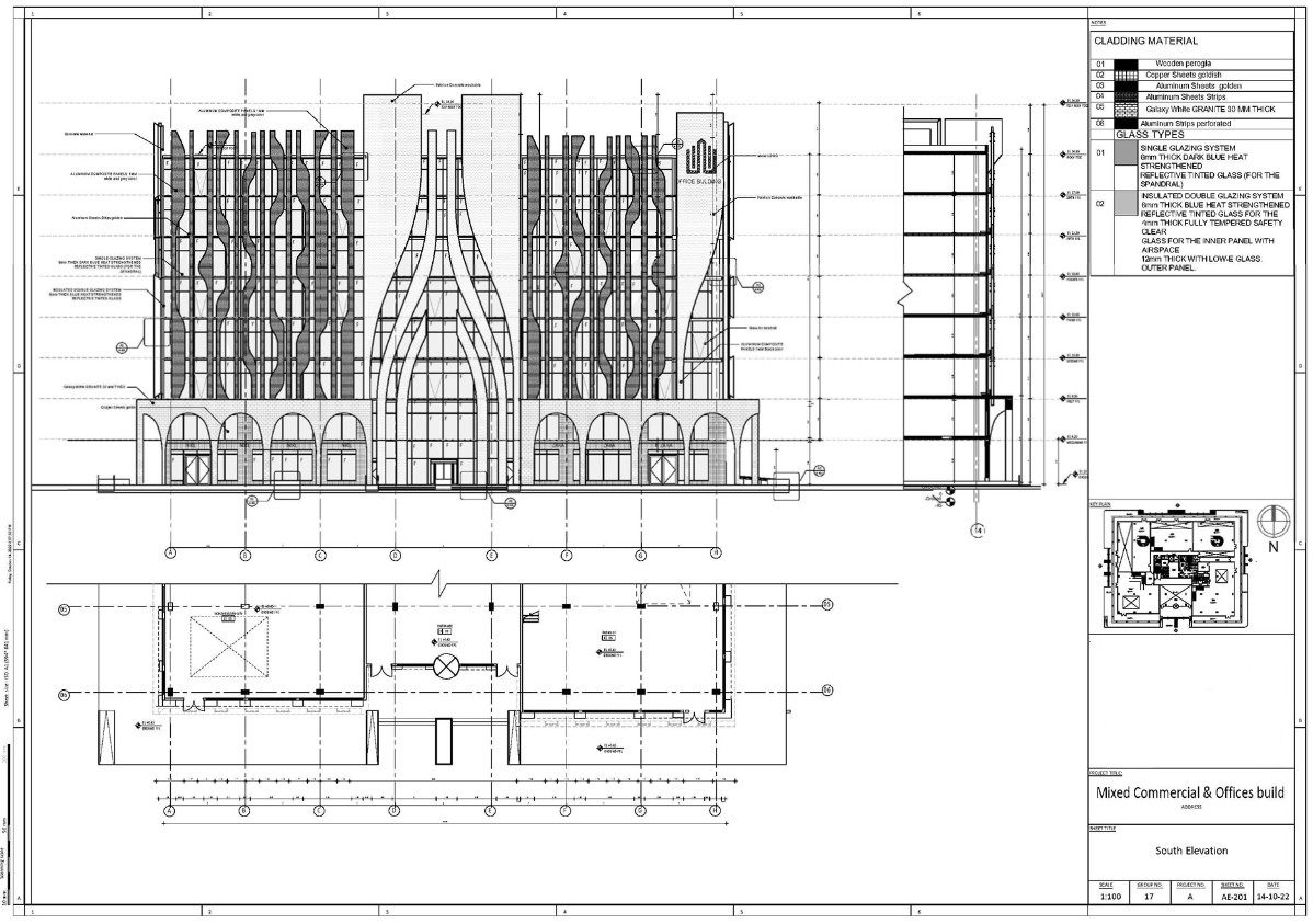
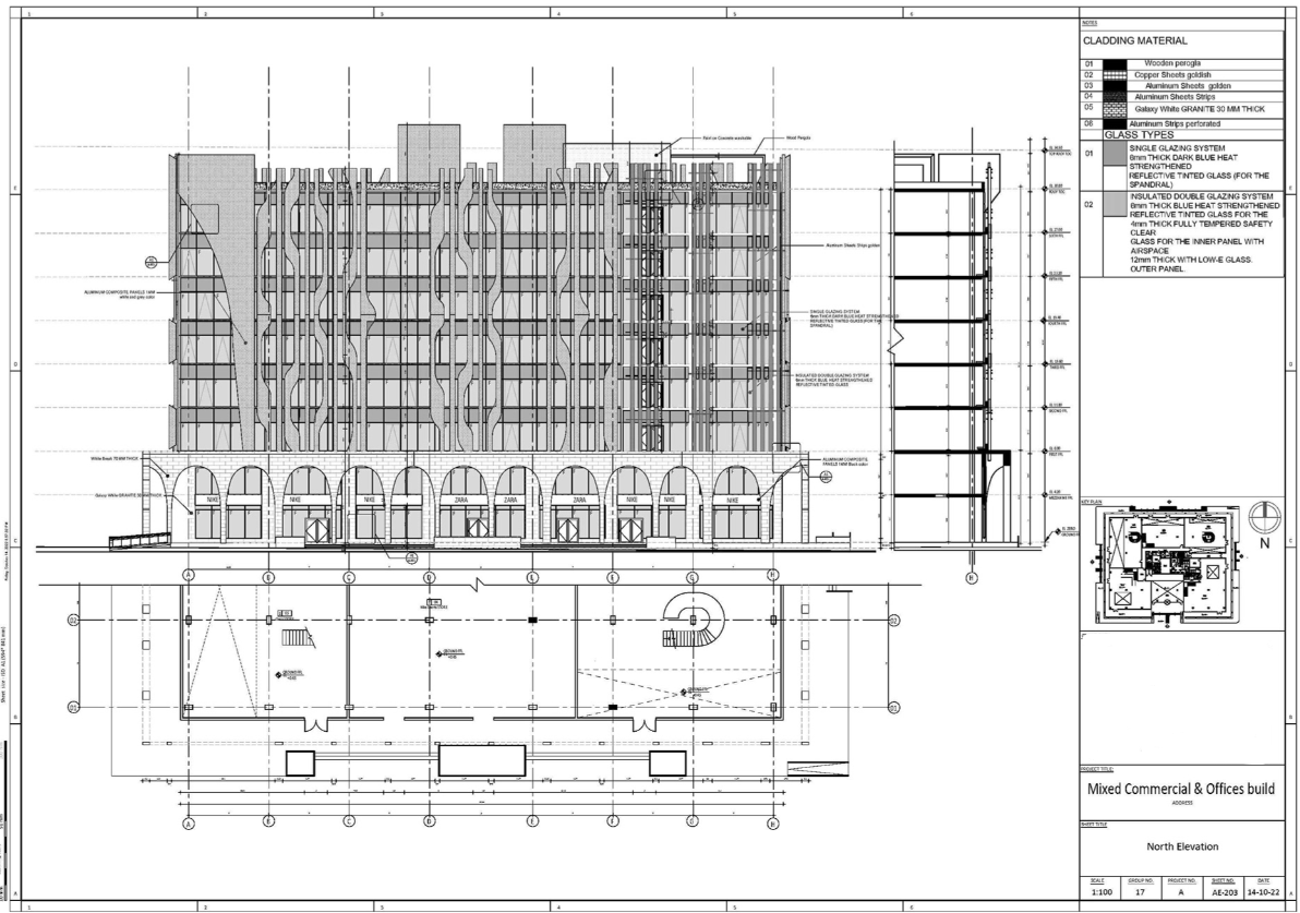
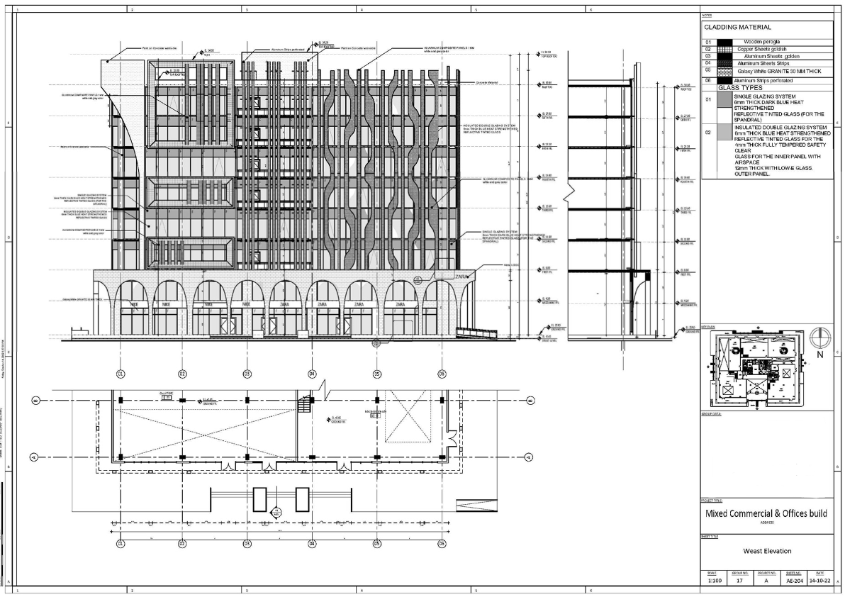
Administration Building Design

Project completion date 

21/3/2023

Location

Cairo 

Project Description

Architectural design work for Administration Building in Cairo ,

Making a complete project shop drawing

Software

Revit, AutoCAD, LUMION ,3Ds MAX 2022, Corona Render 7, Photoshop 2020

------------------------------------------------------

Note: The quality of the images has been reduced for ease of display

-------------------------------------------------------

strain action 

 A company specialized in engineering design work, technical office work, and supervision of engineering projects.

Contact Us

Leave your message and we will contact you as soon as possible.

Strain Action

A company specialized in engineering design work, technical office work, and supervision of engineering projects - We also have a special section for training and engineering courses directed to students of civil engineering colleges and newly graduated engineers

Email Address

info@strain-action.com

Phone number

01117200725
Loading
Your message has been sent. Thank you!