مصنع بالمملكه العربية السعودية

 تاريخ اتمام المشروع

18/8/2023

الموقع 

 المملكه العربية السعودية

 وصف المشروع 

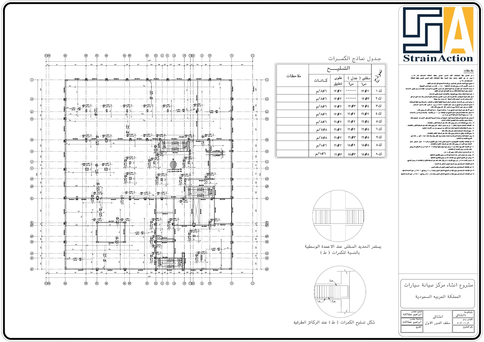
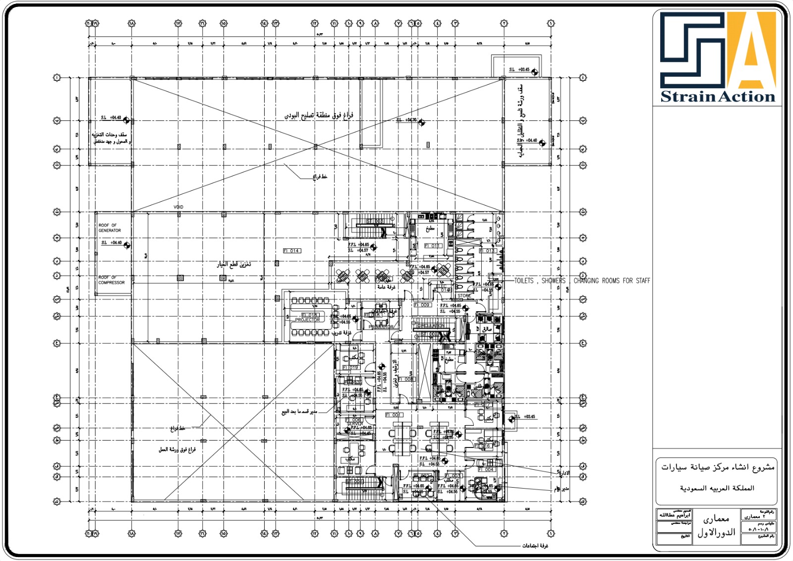
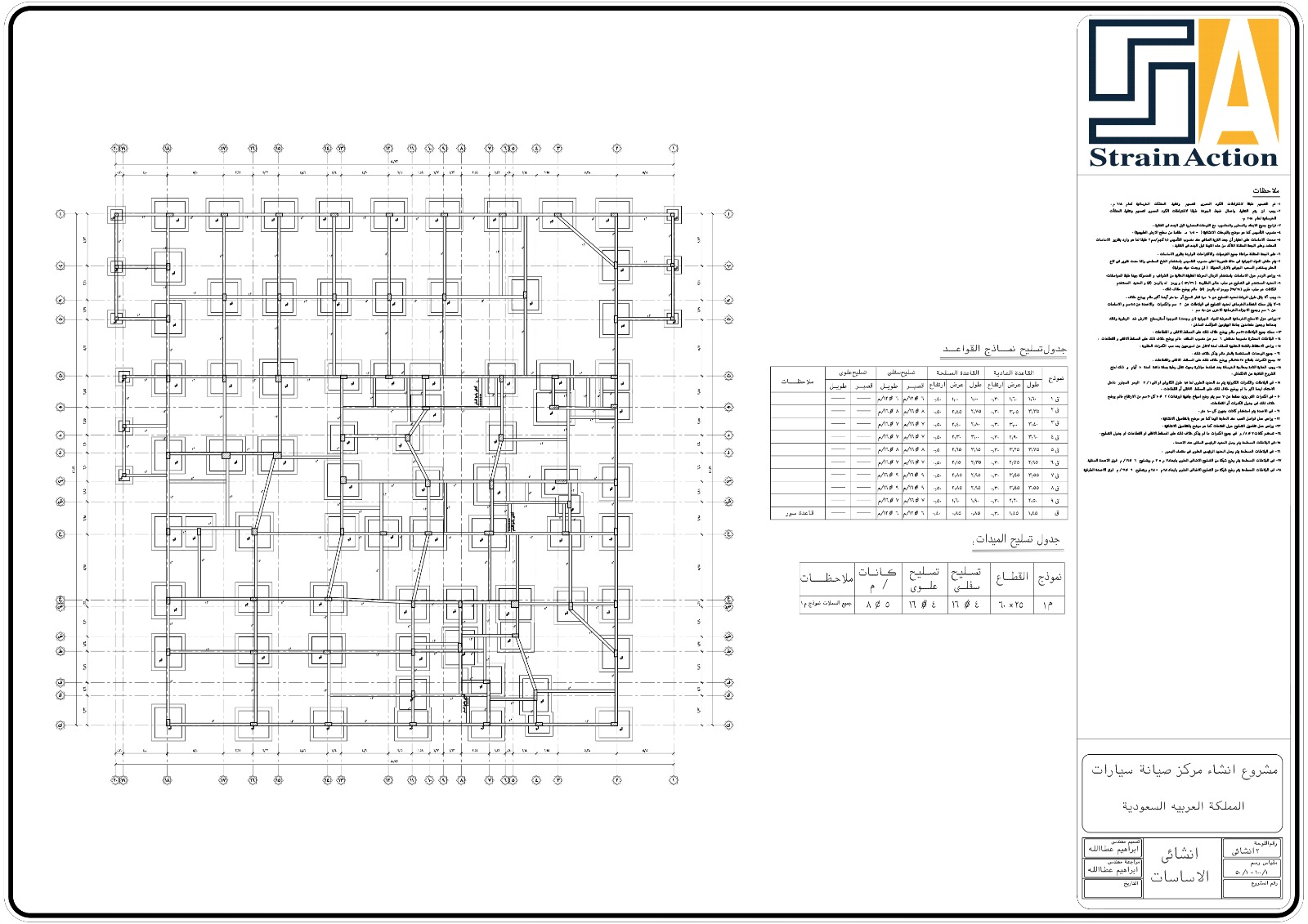
عمل تصميم معماري و انشائي متكامل لمصنع لصيانة السيارات بالمملكه العربية السعودية علي مساحة 10000 متر مربع 

تم عمل التصميم الإنشائي الأمن و الإقتصادي وفقاً لمعاير و قوانين الكود المصري للتصميم و تنفيذ المنشأت الخرسانية

و عمل حصر كامل للمشروع و شوب دروينج كامل

تم اعداد التصميم المعماري ليكون مناسب للاستخدام و متماشي مع عدد من العوامل الهامه مثل المسارات و السلامه وان تعمل جميع الورش علي التوازي 

البرامج المستخدمة في التصميم

AutoCAD , SAFE , ETABS , EXCEL , CSI COLUMN , Revit , LUMION , 3Ds MAX 2022 , Photoshop 2020

-----------------------------------------------

ملحوظة : تم تقليل جودة الصور لسهولة عرضها 

-----------------------------------------

 strain action

شركة متخصصة في أعمال التصميمات الهندسية و اعمال المكتب الفني و الإشراف علي المشروعات الهندسية 

 

 

تواصل معنا

أترك رسالتك وسيتم التواصل معك فى اقرب وقت .

Strain Action

شركة متخصصة في أعمال التصميمات الهندسية و اعمال المكتب الفني و الإشراف علي المشروعات الهندسية - كما لدينا قسم خاص بالتدريب و الكورسات الهندسية موجه لطلاب كليات الهندسة المدنية و المهندسين حديثي التخرج

البريد الألكترونى

info@strain-action.com

رقم الهاتف

01117200725
Loading
Your message has been sent. Thank you!